Arquitectura que resuelve
Arquitectura que resuelve
  • Inicio
  • Diagnóstico DOM - Cabida Normativa y Factibilidad del Proyecto EMPIEZA AQUÍ
|

Diagnóstico DOM - Cabida Normativa y Factibilidad del Proyecto EMPIEZA AQUÍ

Archivo

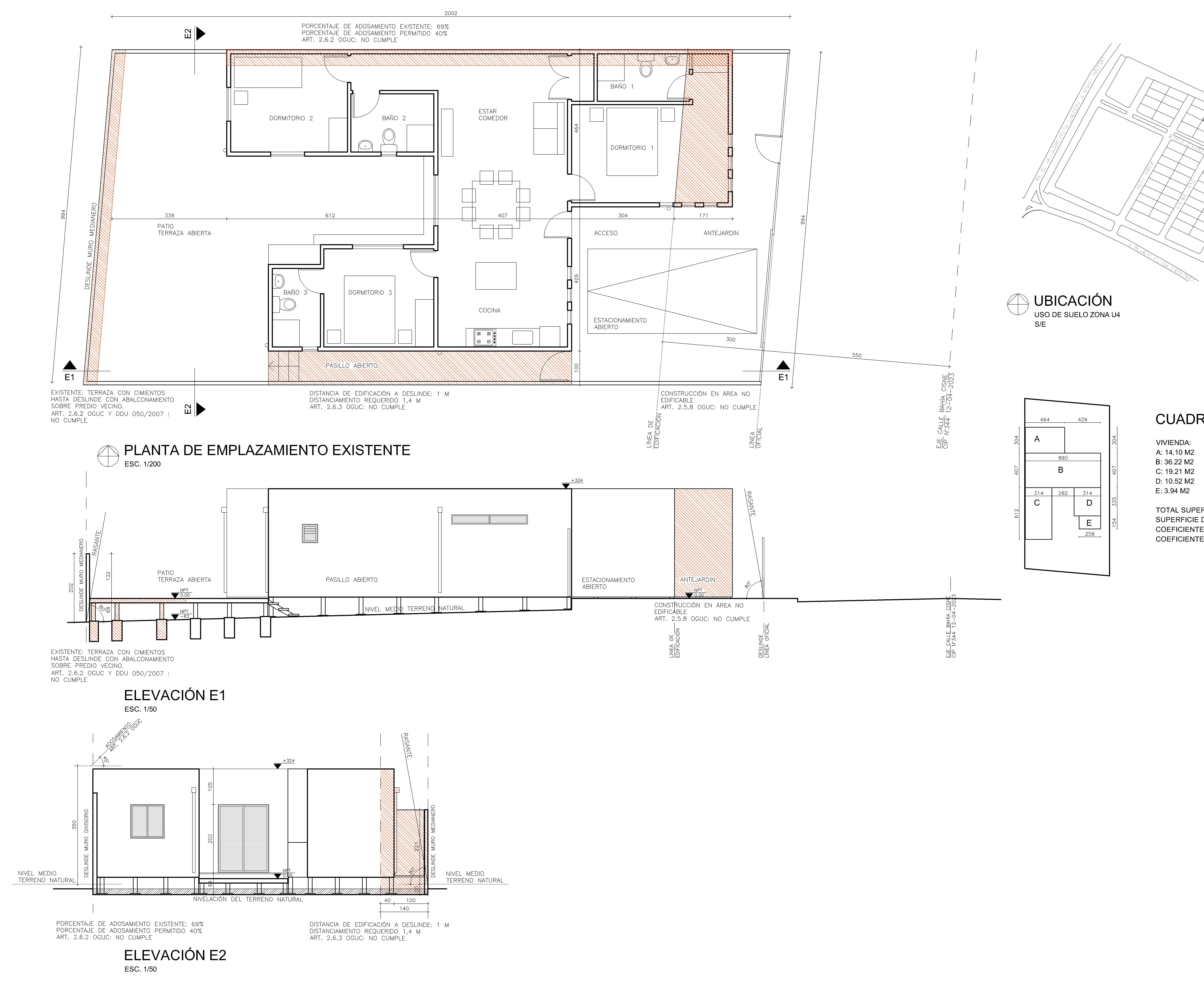
Descripción

Análisis normativo para definir qué se puede construir o regularizar.

Aclara el camino antes de construir, invertir o regularizar una propiedad.

El Diagnóstico Normativo DOM es un informe profesional que entrega una respuesta clara, fundamentada y documentada sobre la viabilidad de un proyecto según la normativa urbanística vigente (OGUC y Plan Regulador Comunal).

Este servicio está orientado a viviendas y locales comerciales de pequeña y mediana escala.
Para sitios eriazos, proyectos industriales, inmobiliarios o de gran envergadura, el diagnóstico se cotiza de forma personalizada según los antecedentes del caso.

Está dirigido a propietarios, inversionistas y empresas que necesitan certeza técnica antes de invertir tiempo y dinero.

¿Qué incluye?

  • Revisión del Certificado de Informaciones Previas (CIP)
  • Análisis de normativa aplicable (OGUC y PRC vigente)
  • Evaluación según el objetivo del cliente:
    vender · regularizar · ampliar · obtener patente · construir
  • Revisión de antecedentes disponibles del predio
  • Conclusión clara y directa:
    ✔ Proyecto viable
    ⚠ Proyecto viable con condiciones
    ✖ Proyecto no viable

Entrega

  • Informe escrito de diagnóstico normativo
  • Recomendación del camino a seguir: regularización o desarrollo de proyecto arquitectónico

Requisitos del cliente

  • Certificado de Informaciones Previas (CIP) vigente
  • Antecedentes disponibles del predio (planos, croquis o información disponible)

Alcance y valor

Incluye:
• Visita a terreno (Región de Valparaíso y Maule)

Este servicio está orientado a viviendas y locales comerciales de pequeña y mediana escala.
Para sitios eriazos, proyectos industriales, inmobiliarios o de gran envergadura, el diagnóstico se cotiza de forma personalizada.

Valor referencial: desde $120.000.-
El valor final puede variar según la complejidad del predio y el alcance del encargo.

¿Cómo funciona?

1. El cliente solicita el diagnóstico a través del formulario o contacto directo.

2. Debe enviar:
• Certificado de Informaciones Previas (CIP)
• Dirección y comuna del predio
• Objetivo del encargo
• Planos o croquis simple y fotografías del inmueble

3. Se confirma el alcance y valor del diagnóstico.

4. Se realiza visita a terreno y el análisis normativo.

5. Entrega del informe profesional de diagnóstico normativo.

5. Plazo de entrega: 5 a 10 días hábiles según complejidad.

Beneficio adicional

💡 Si continúas con el proyecto arquitectónico o la regularización, el valor del diagnóstico se descuenta del servicio posterior.